Architectural Drawing

Our Expertise in Architectural Drawing Services

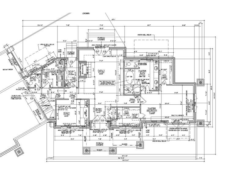
Garcha Design Build specializes in creating precise architectural drawings that form the backbone of your construction or renovation project. Each project begins with a collaborative process, where our team works closely with you to develop custom designs that reflect your vision and meet specific needs. Comprehensive documentation, including floor plans, elevations, and detailed specifications, ensures clarity throughout every stage. Our drawings adhere to local building codes and regulations, ensuring both beauty and safety. To enhance your understanding of the final outcome, we provide 3D renderings that allow you to visualize the space before construction starts. By integrating all technical aspects with input from structural and civil engineers, we deliver cohesive plans that focus on detail, considering every element from materials to finishes. With our architectural drawing services, confidence in the execution of your project is guaranteed.

Why Choose Us for Architectural Design

  • Expertise and Experience: Our team of skilled architects brings years of experience and specialized knowledge to every project, ensuring that your vision is executed with precision and creativity.
  • Customized Solutions: We understand that every client has unique needs. Our personalized approach allows us to tailor designs that reflect your style, preferences, and functional requirements.
  • Collaborative Process: We prioritize open communication and collaboration throughout the design process. Your input is invaluable, and we work closely with you to refine ideas and ensure alignment with your vision.
  • Sustainable Practices: Our commitment to sustainability is evident in our designs. We incorporate eco-friendly materials and energy-efficient solutions to create buildings that are not only beautiful but also environmentally responsible.
  • Attention to Detail: We pride ourselves on our meticulous attention to detail, ensuring that every element of your design is thoughtfully considered and executed to the highest standards.
  • Innovative Design Solutions: Our team stays updated with the latest architectural trends and technologies, allowing us to provide innovative solutions that enhance functionality and aesthetics.
  • Client Satisfaction: Our primary goal is your satisfaction. We strive to exceed your expectations, delivering designs that not only meet your needs but also inspire and delight.

Importance of Architectural Design

  • Aesthetic Appeal: Architectural design significantly influences the visual impact of a building, ensuring it complements its surroundings while reflecting the owner’s style and preferences.

  • Functionality: Thoughtful design enhances the usability of a space. By considering how people will interact with the environment, architects create layouts that promote comfort and efficiency.

  • Sustainability: Good architectural design incorporates sustainable practices, optimizing energy efficiency and reducing the environmental footprint through smart material choices and site planning.

  • Compliance: Adhering to local building codes and regulations is essential. Well-designed architecture ensures that projects meet legal standards, promoting safety and longevity.

  • Value Addition: Quality architectural design can significantly increase the value of a property. A well-designed building not only attracts potential buyers but also can lead to higher resale values.

  • Cultural Reflection: Architectural design often reflects cultural values and heritage, contributing to a community’s identity and enhancing its historical significance.

  • Adaptability: A well-planned architectural design allows for future modifications and expansions, ensuring the building can adapt to changing needs over time.

  • Community Impact: Thoughtful architecture can positively affect the surrounding community, creating spaces that promote social interaction, accessibility, and overall well-being.

Garcha Design Building

Garcha Design Build is dedicated to turning your dreams into reality through innovative design and exceptional craftsmanship. With a focus on quality and client satisfaction, we manage every project with care and expertise.

Message Us

7 + 14 =

Office

21614 126 Ave, Maple Ridge, V2X 4N7, BC, Canada

Phone Number

+1 (250) 516 0471